Since January, a series of works are being carried out in the area of compactors of Gate Gourmet facilities with the purpose of improving the segregation capacity of the waste generated.
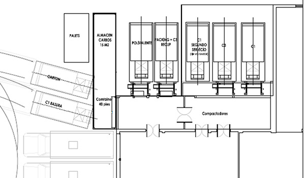
Before the beginning of the work, there were 5 compactors: two for Category 1 waste from non-Community flights and one for Category 3 from the European Union, 1 for paper / cardboard and 1 for plastics.
After the completion of the work, there will be 7 compactors available to classify the waste generated in the cabin of the aircraft and in Gate Gourmet’s facilities as follows:
The training of Gate Gourmet staff will begin soon to ensure the proper management of the different waste. Thanks to the collaboration of different areas of the company in selective collection, it will be possible to increase the level of recycling, the main goal of the Life+ ZCW project.


